About
Recognition
Process
Philosophy
Portfolio
Commercial
Conceptual
Ecclesiastical
Hospitality
Multi-Family & Residential
Restaurants
Retail
Senior Living
Press
Contact
About
Recognition
Process
Philosophy
Portfolio
Commercial
Conceptual
Ecclesiastical
Hospitality
Multi-Family & Residential
Restaurants
Retail
Senior Living
Press
Contact
Ecclesiastical Concepts
New Albany Church Color 7.10.06
New Albany Presbyterian Church
Schematic Site
St. Agatha Catholic School Site Master Plan
st agatha plan + elevation
St. Agatha Catholic School Plan and Elevation
St. Agatha COLOR 10.06.06
St. Agatha Catholic School Aerial Perspective
Master Plan.30×30.indd
St. Joseph Monastery Site Master Plan
Drawings.17×11.indd
St. Joseph Monastery Floor Plan
Drawings.17×11.indd
St. Joseph Monastery Elevation
Concepts 4
St. Joseph Monastery Proposed Elevations
2005-09-20.Interior Section.17×11.indd
St. Joseph Monastery Interior Section
2005-09-20.Interior Section.17×11.indd
St. Joseph Monastery Interior Section
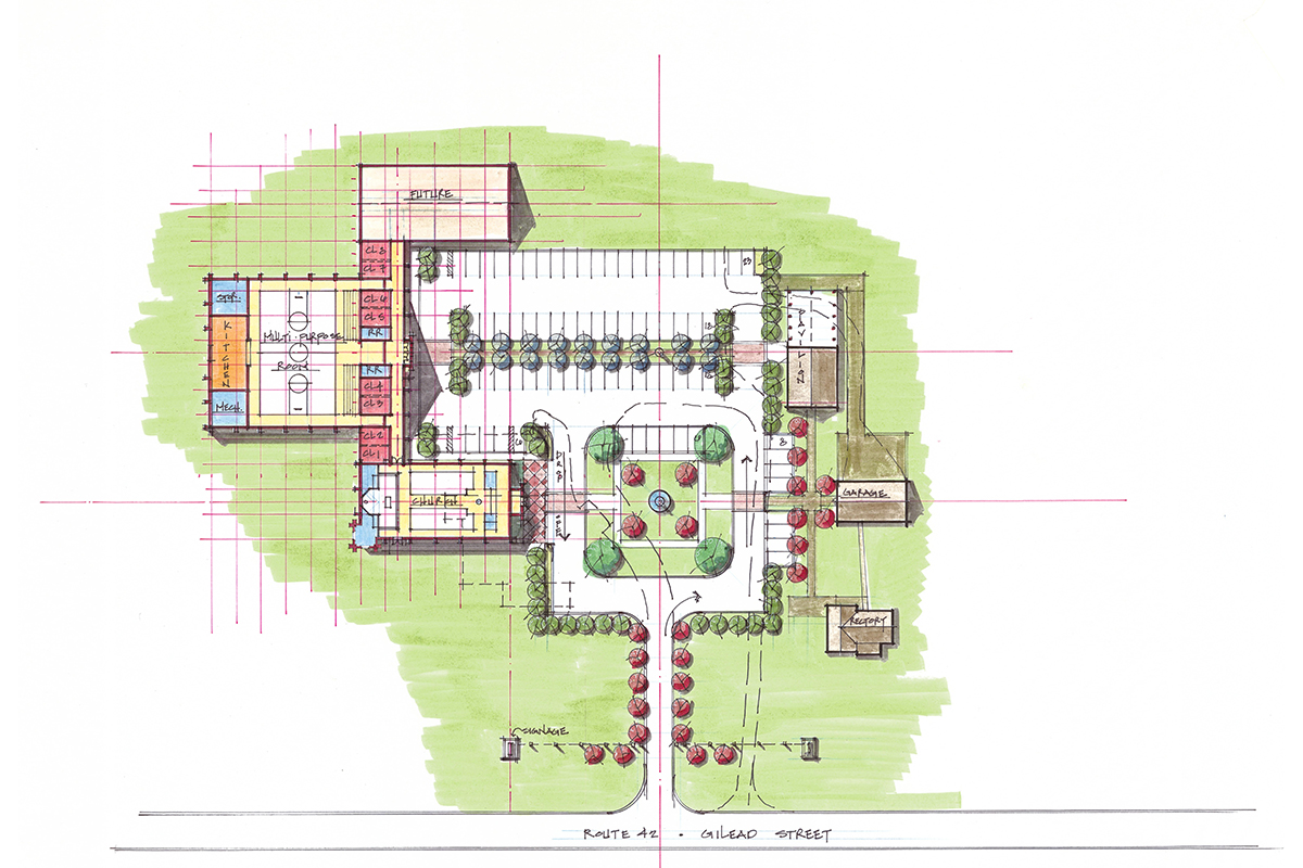
140106 – Sacred Heart – Site Plan
Sacred Heart Master Site Plan
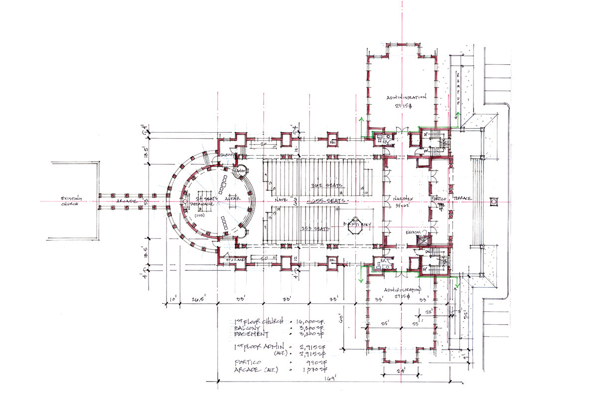
140106 – Sacred Heart – Plan Enlarged
Sacred Heart Floor Plan
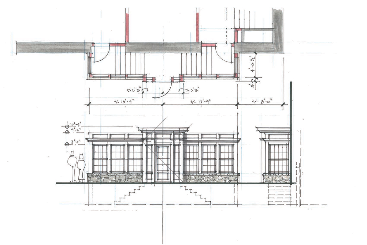
140106 – Sacred Heart – Elevation – With Tower
Sacred Heart Elevation
Concepts 11
St. Peter the Apostle Site Master Plan
Concepts 12
St. Peter the Apostle Floor Plan
Concepts 13
St. Peter the Apostle North Elevation
Concepts 14
St. Peter the Apostle East Elevation
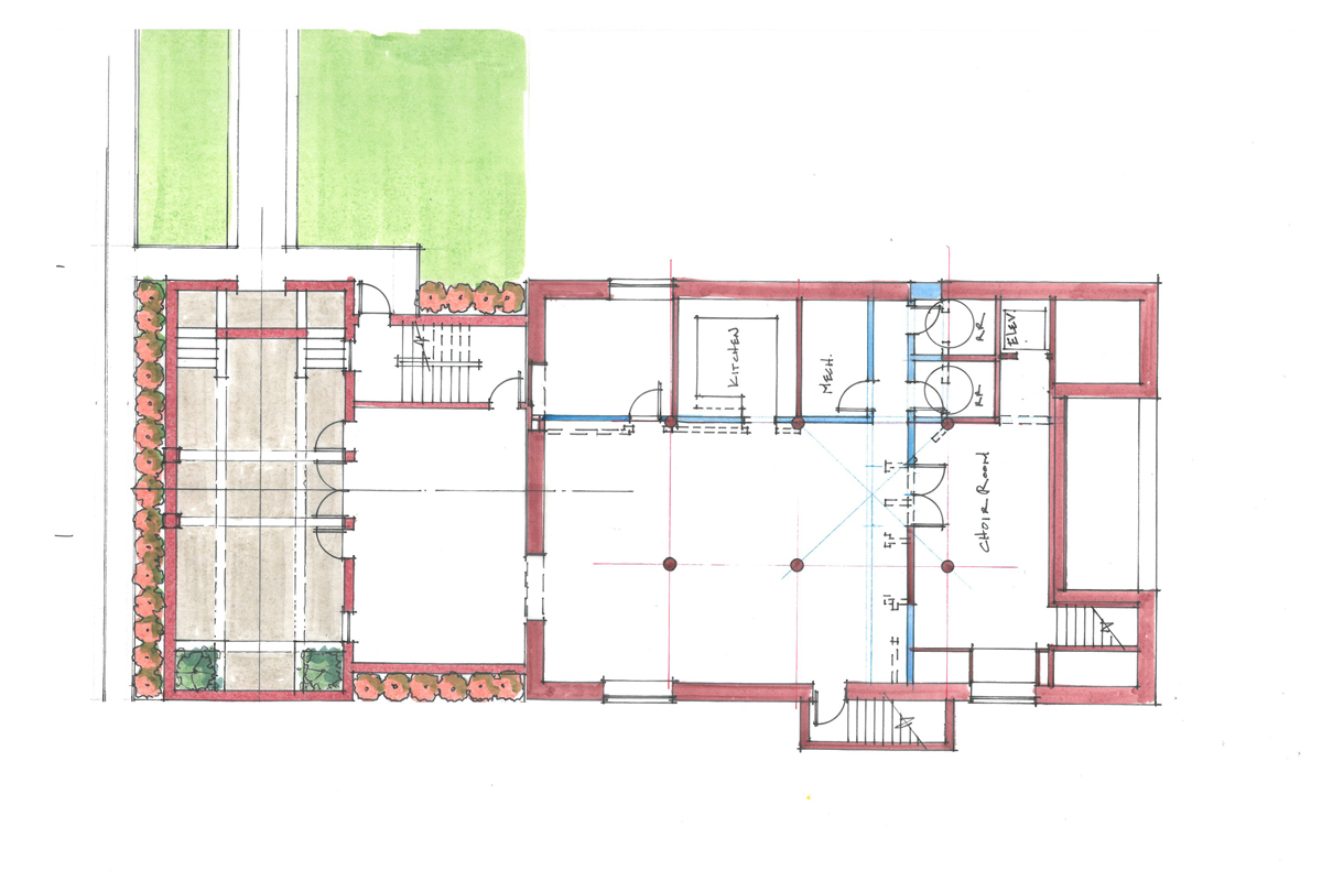
St luke main floor
St. Luke Main Floor Plan
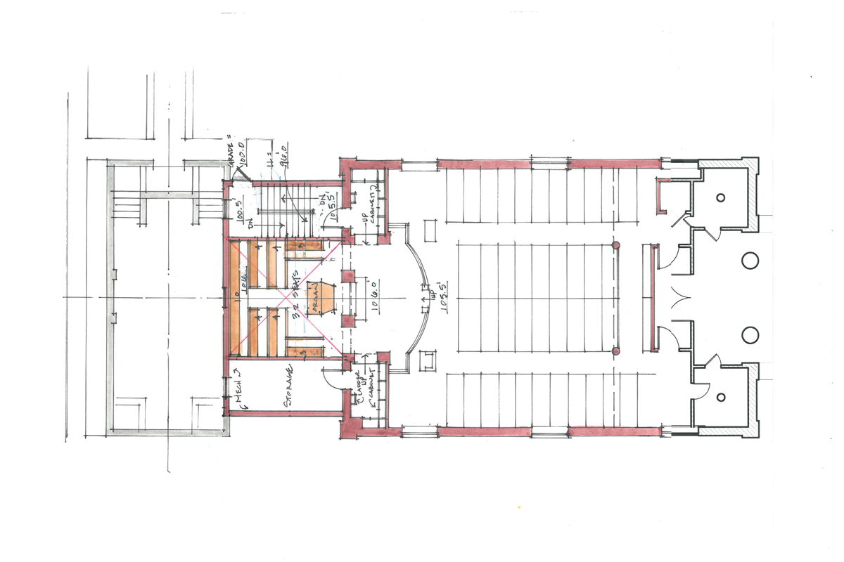
St. Luke Undercroft
St. Luke Lower Level Plan
South Elevation
St. Luke South Elevation
Adobe Photoshop PDF
St. Luke East Elevation
Adobe Photoshop PDF
St. Luke Stair Enclosure Design
St. Luke Handrail sketch
St. Luke Handrail Design
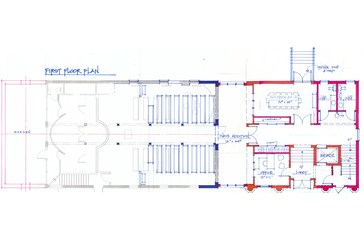
Floor Plans 11 Nov 14
St. Gregory of Nyssa First Floor Plan
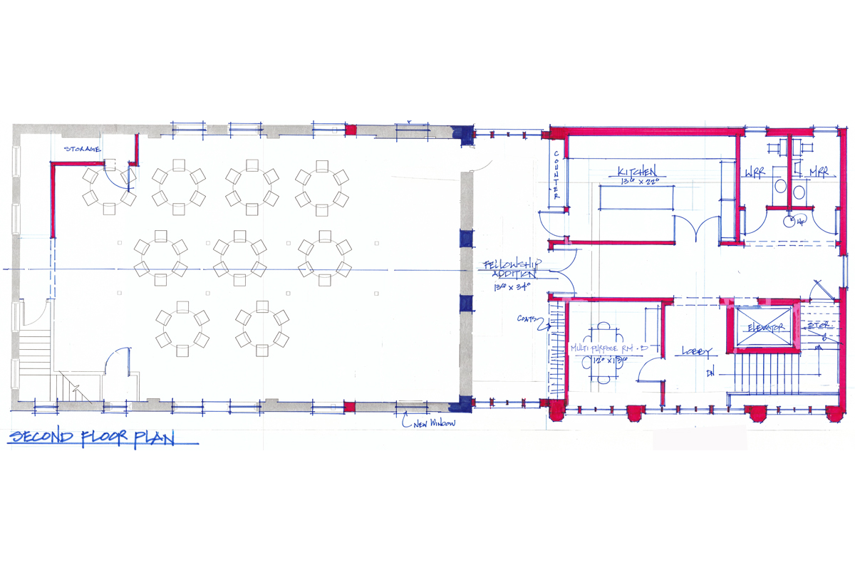
Floor Plans 11 Nov 14 2nd floor
St. Gregory of Nyssa Second Floor Plan
DSCN8558
St. Gregory of Nyssa East Elevation Before
unknown title
St. Gregory of Nyssa East Elevation
DSCN8540
St. Gregory of Nyssa North Elevation Before
unknown title
St. Gregory of Nyssa North Elevation
IMAG2048
St. Gregory of Nyssa Before
St. Gregory.skp
St. Gregory of Nyssa Perspective
Location
Various Locations
Date
Unbuilt
Category
Ecclesiastical
About This Project
34
Likes