About
Recognition
Process
Philosophy
Portfolio
Commercial
Conceptual
Ecclesiastical
Hospitality
Multi-Family & Residential
Restaurants
Retail
Senior Living
Press
Contact
About
Recognition
Process
Philosophy
Portfolio
Commercial
Conceptual
Ecclesiastical
Hospitality
Multi-Family & Residential
Restaurants
Retail
Senior Living
Press
Contact
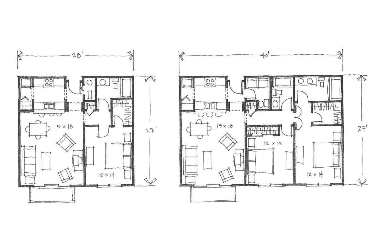
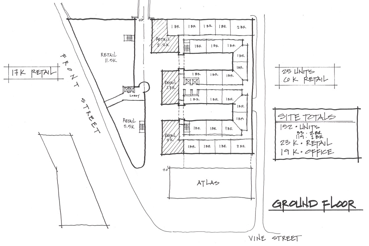
Ludlow Alley
ludlowelevation1
ludlowelevation2
ludlownorthsiteplan2
ludlowunitplans1-2bdrms
apartment_1
apartment_2
Location
Columbus, OH
Category
Multi-Family / Residential
About This Project
A 166 unit Urban style apartment mixed with Retail/Restaurants at a Pedestrian Level.
34
Likes