Franciscan University Chapel

  • Franciscan 0

    Site Plan
  • 140304 – site plan – full size

    Site Plan
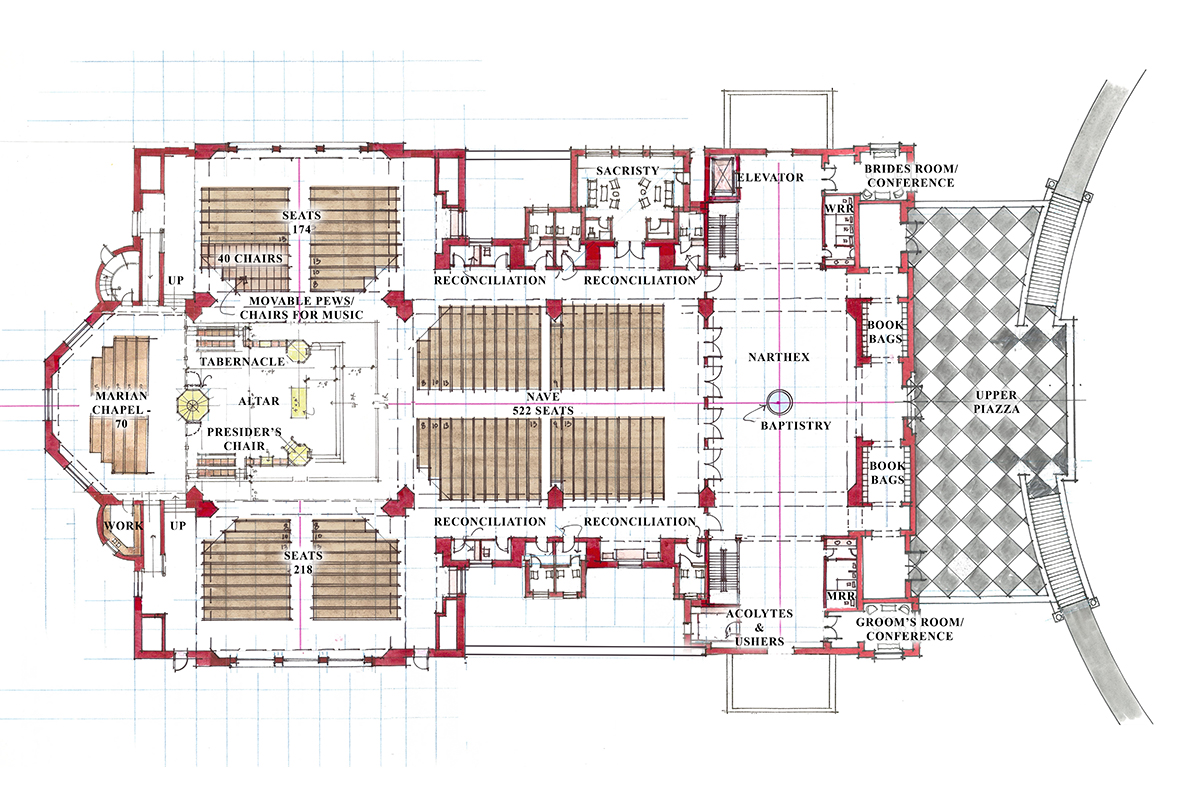
  • 140304 – main floor plan

    Main Floor Plan
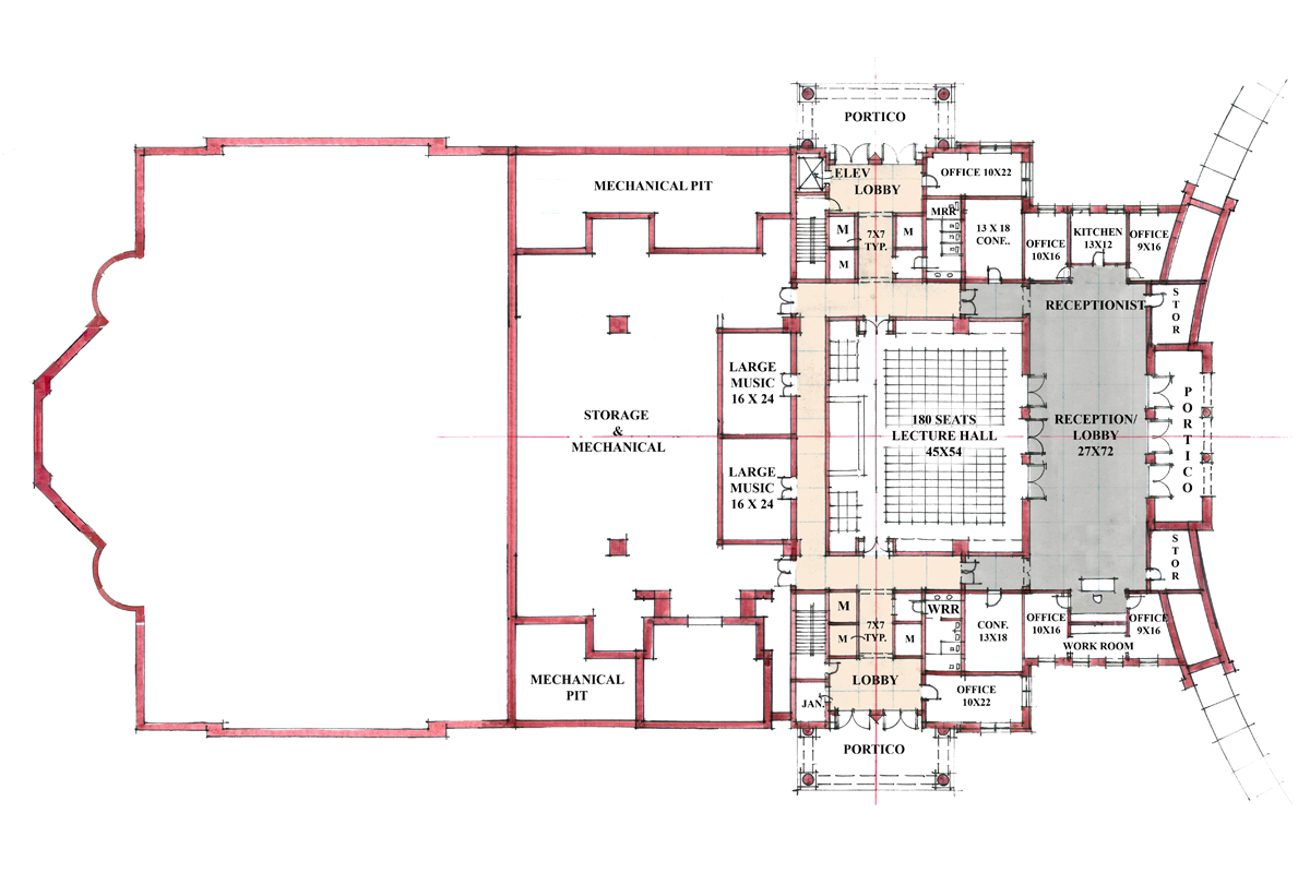
  • 140304 – lower level plan

    Lower Level Floor Plan
  • north elevation – half scale

    Side Elevation
  • 140304 – north elevation

    Front Elevation
  • 140304 – west elevation copy

    Rear Elevation
  • east elevation – half scale

    Rear Elevation
  • south elevation – half scale

    Side Elevation
  • 140305 – north elevation – full size

    Side Elevation
  • 140305 – new scene copy

    Perspective
  • 140305 – scene 18 copy

    Perspective
  • 140305 – scene 16 copy

    Perspective
  • franciscan ex scene 1

    Perspective
  • render01

    Perspective
  • render04

    Perspective
Location

Steubenville, OH

Date

Unbuilt

Category
Ecclesiastical
About This Project

Franciscan University of Steubenville is a Catholic and Franciscan institution promoting the moral, spiritual, and religious values of its students. Using cues from the architectural style of Saint Francis of Assisi, David B. Meleca Architects, LLC were able to incorporate historical context into this modern university landscape.